Современный минимализм: Сценарий «на вырост» в 64 м² в ЖК «Открытый парк»

Введение: Искусство диалога с типовым пространством
Современный минимализм в городском жилье перестал быть синонимом пустоты и радикального отказа. Сегодня он эволюционировал в тонкое искусство сценарного проектирования — когда дизайн предвосхищает изменения в жизни владельцев, оставаясь при этом эстетически безупречным и функциональным здесь и сейчас. Яркий пример такого подхода — проект дизайнера Екатерины Бабенко для молодой семьи в ЖК «Открытый парк».
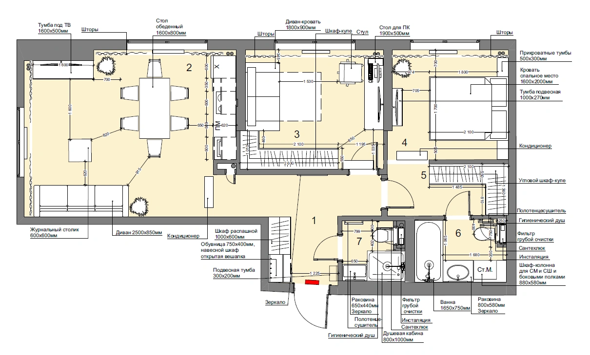
Задача выходила за рамки простого оформления типовой «евро-трешки» площадью 63,7 м². Предстояло создать интерьер-трансформер, который будет служить комфортным фоном для разных жизненных этапов: от текущей жизни пары, нуждающейся в кабинете и гостевой зоне, до будущего с появлением ребенка. Ключевым стал запрос на «элегантный минимализм» — стиль, где сдержанность форм и палитры сочетается с эмоциональным теплом и четко выверенной эргономикой.
Глава 1: Планировка как главный инструмент нарратива
Вместо капитальных перепланировок Бабенко сделала ставку на интеллектуальное зонирование и приоритизацию. Главный принцип был сформулирован сразу: жизнь происходит в гостиной, спальня — место для отдыха. Это классический прием современного минимализма, где функция пространства диктует его форму и размер.
Доминанта общей зоны (23,5 м²): Кухня-гостиная стала безусловным сердцем квартиры. Ее прямоугольная форма была четко разделена на три функциональных блока без физических преград. Угловой кухонный гарнитур со скрытыми фасадами «в потолок» визуально растворяется, освобождая пространство. Обеденная группа служит мягким буфером, а зона релакса с диваном формирует центр притяжения. Это пространство дышит, потому что ни один сантиметр не перегружен.
Тактичное разделение приватного и общего: Две спальни были разнесены по разные стороны коридора, создавая естественную звукоизоляцию и ощущение отдельного «тихого» крыла. Это не просто планировочное решение, это создание разных психологических сценариев внутри одной квартиры.
Гибкость второй комнаты (9,1 м²): Здесь кроется квинтэссенция идеи «дизайна на вырост». Сегодня это кабинет с рабочим местом у окна и раскладным диваном для гостей. Завтра, после минимальных изменений (замена мебели), это станет полноценной детской. Базовая, нейтральная отделка позволяет этой трансформации произойти без ремонта, что является признаком продуманного, устойчивого подхода.

Глава 2: Философия освобожденного пространства: Детали, которые его создают
Проект Екатерины Бабенко демонстрирует, что современный минимализм — это не отказ от вещей, а их тотальная организация.
Система скрытого хранения — основа визуального покоя: Отказ от громоздких шкафов-купе в небольших спальнях (11,7 м²) стал смелым, но оправданным шагом. Вместо них Бабенко задействовала «пограничные» зоны: просторный шкаф во входной зоне (8,2 м²), дополнительную систему хранения во втором коридоре (4,4 м²), локальный гардероб в спальне. Это превращает проходы в функциональные модули, а жилые комнаты — в чистые, незахламленные объемы, предназначенные исключительно для отдыха и сна.
Рациональная роскошь: Решение сохранить два санузла (4,1 м² и 2,7 м²) вместо их объединения — важный семантический жест. Это вложение не в квадратные метры, а в качество ежедневных ритуалов. Отсутствие утренних очередей, комфорт для гостей и будущих членов семьи — это та нематериальная ценность, которую создает продуманный минимализм.
Материальная палитра и акцент на личности: Цветовая основа — сложные оттенки бежевого, серого, off-white — работает как идеальный нейтральный фон, расширяя границы. А вот графичные черные акценты (трековые светильники, фурнитура) задают четкий ритм. Важнейший прием — внесение персонального высказывания. В спальне хозяйки это элементы фэшн-эстетики (постеры Chanel), которые, не нарушая общей гармонии, рассказывают историю владельца. Многослойный текстиль (шторы, обивка) добавляет тактильную теплоту, смягчая геометрию.
Глава 3: «Элегантный минимализм» как стратегия для жизни
Проект в «Открытом парке» — это больше, чем дизайн-проект. Это стратегическое планирование жизни через среду обитания.
Минимализм как синоним гибкости. Истинная современность интерьера измеряется не трендами, а его способностью адаптироваться. Здесь это заложено в саму ДНК планировки.
Эмоция через функциональность. Удобство двух санузлов, отсутствие толчеи у шкафа, простор для общения в гостиной — каждый элемент работает на снижение бытового стресса, создавая фоновое ощущение счастья.
Ликвидность и вневременность. Нейтральная база и качественные материалы обеспечивают интерьеру долгую эстетическую жизнь и высокую ликвидность на рынке. Это разумное вложение.
Осознанность вместо аскезы. Минимализм Бабенко — не в лишении, а в осознанном выборе: что действительно необходимо для комфорта сегодня и что важно предусмотреть для завтра. Каждый предмет и метр имеют ясное назначение.
Заключение: Проектирование времени
Работа Екатерины Бабенко в ЖК «Открытый парк» наглядно показывает, что современный минимализм — это практическая философия для динамичной городской жизни. Он учит вести диалог с пространством, выявляя его истинный потенциал, а не ломая стены.
Это дизайн, который проектирует время: учитывает его течение, готовится к изменениям и создает спокойную, организованную среду, где можно сосредоточиться на главном — на жизни, а не на обслуживании самого интерьера. В конечном счете, именно такой подход превращает типовые метры в уникальный сценарий счастливой жизни, где каждое решение — это шаг к гармонии между человеком и его домом.[СОДЕРЖАНИЕ РЕДАКТОРА]
Проект в ЖК «Открытый парк» от дизайнера Екатерины Бабенко — это мастер-класс по превращению типовой площади в стратегический актив семьи. Здесь минимализм выступает не как ограничение, а как инструмент гибкости.
Инвестиционная ценность решений:
Трансформация «Офис-Детская»: Нейтральная база комнаты 9.1 м² позволяет сменить сценарий использования за выходные.
Эргономика хранения: Использование коридоров под шкафы освободило жилые комнаты для «воздуха» и отдыха.
Два санузла: Сохранение раздельных зон — залог комфорта и высокой ликвидности объекта в будущем.