
Лаконичный комфорт: дизайн однокомнатной квартиры в ЖК «Некрасовка»
О проекте
Эргономика типового жилья: Полный обзор дизайн-проекта в ЖК «Некрасовка»
1. Введение: Потенциал «панельки»
Район Некрасовка сегодня — это один из самых динамично развивающихся кластеров Москвы. Плотная застройка и типовые планировки домов ставят перед дизайнером нетривиальную задачу: как сделать стандартную квартиру индивидуальной? Как уйти от ощущения «жизни в коробке» и создать пространство, которое будет конкурировать с апартаментами бизнес-класса?
Владельцы однокомнатной квартиры на улице Маресьева обратились к нам именно с таким запросом. Им нужно было жилье «под ключ», где каждый угол используется рационально. Исходные данные — классическая «однушка» с раздельным санузлом, небольшой кухней и жилой комнатой. Наша цель заключалась в создании современного, светлого интерьера, который визуально расширит границы стен и обеспечит комфорт для жизни.
В этом кейсе я подробно расскажу, как мы работали с пространством, почему выбрали душевую зону строительного исполнения и какие инженерные решения применили, чтобы повысить класс жилья.
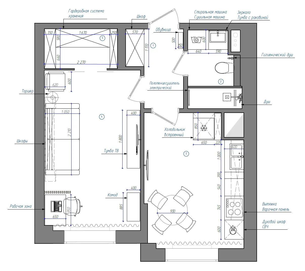
2. Планировочные решения: Борьба за геометрию
Главный враг типовых квартир — узкие коридоры и нерациональные углы. Работа над проектом началась с полного переосмысления плана монтажа стен.
Зонирование и Демонтаж Мы проанализировали исходный план БТИ и предложили решение, которое существенно улучшило эргономику:
Объединение и трансформация санузла: В типовых однушках ванная и туалет часто разделены, создавая два тесных помещения. Мы пересмотрели этот узел. Это позволило нам выделить место под полноценную систему хранения и стиральную машину, не загромождая проходы.
Геометрия прихожей: Мы выровняли геометрию входной зоны, предусмотрев ниши для встроенных шкафов. Шкаф в прихожей — это стратегический объект: он должен вместить всю верхнюю одежду, обувь и хозяйственный инвентарь, разгрузив жилую комнату.
Кухня как гостиная: Несмотря на ограниченный метраж кухни, мы расставили мебель так, чтобы выделить не только зону готовки, но и комфортную обеденную зону, которая может служить местом для приема гостей.

3. Стилистика и Визуальный код
Визуализации проекта демонстрируют выбор в пользу современного минимализма. Это не стерильный «больничный» минимализм, а теплый, жилой вариант (Soft Minimal).
Цветовая гамма База интерьера — светлые, воздушные оттенки: белый, жемчужно-серый, цвет слоновой кости.
Почему светлый? ЖК «Некрасовка» — это плотная застройка, и квартиры на невысоких этажах часто страдают от нехватки естественного света. Светлые стены работают как рефлекторы, отражая солнечные лучи и наполняя квартиру воздухом.
Текстуры: Чтобы монохром не выглядел скучно, мы ввели фактуры натурального дерева в напольных покрытиях и мебели, а также текстуру камня в отделке санузла и фартука.

4. Детальный обзор помещений (Room Tour)
Давайте пройдемся по квартире и посмотрим на конкретные решения.
Прихожая и Коридор
Входная зона — это визитная карточка. Здесь мы использовали практичный керамогранит на полу в «грязной зоне». Это позволяет легко поддерживать чистоту в нашем климате. Стены окрашены в износостойкую краску, что критично для узких пространств, где мы часто задеваем стены сумками или одеждой. Зеркало в пол визуально удваивает пространство коридора.
Кухня
Кухня в этом проекте — образец функциональности. Мы использовали продуманную планировку гарнитура, чтобы соблюсти правило «рабочего треугольника» (холодильник – мойка – плита).
Фасады: Матовые, лаконичные, что облегчает уборку и визуально «чистит» пространство.
Фартук: Выполнен из крупноформатного керамогранита под камень. Минимум швов — максимум гигиены.

Спальня-Гостиная
Жилая комната зонирована на спальное место и зону отдыха. В однокомнатной квартире всегда стоит выбор: диван или кровать? Мы постарались найти компромиссное решение, обеспечив здоровый сон. Текстиль играет огромную роль: плотные шторы блэкаут позволяют выспаться даже в солнечный день, а мягкий ковер добавляет уюта.
Санузел: Технологичный подход
Санузел — это, пожалуй, самое сложное техническое помещение. Здесь мы применили решения, характерные для отелей высокого класса.
Душевая зона Walk-in: Мы отказались от акриловых кабин. Вместо этого — душевая зона в строительном исполнении с трапом. В проекте использован трап AM.PM PrimeFlow (60 см) с комбинированным затвором и стальной матовой решеткой. Это надежно, стильно и долговечно.
Сантехника:
Унитаз: приставная модель IDDIS Calipso Rimless. Безободковая конструкция — это новый стандарт гигиены.
Раковина: Накладная прямоугольная чаша выглядит современно и стоит на столешнице, под которой размещена стиральная машина.
Смесители: Высокий смеситель для раковины и душевая система скрытого монтажа.

5. Технические решения и Инженерия
Красивая картинка ничего не стоит без грамотной инженерии. Проект включает полную техническую карту ремонта.
Освещение Мы проработали три сценария света:
Общий: Встроенные потолочные светильники или трековые системы для равномерной заливки.
Рабочий: Подсветка кухонной столешницы и яркий свет у зеркала в ванной.
Декоративный/Вечерний: Бра и скрытые подсветки штор. Это позволяет менять атмосферу в квартире одним нажатием клавиши.
Сантехника и Электрика План розеток разработан с учетом всей современной техники: предусмотрены выводы под роутер, зарядки гаджетов у кровати, розетки для бытовых приборов на кухне. В санузле использована качественная инсталляция и продуман доступ к коммуникациям через скрытые люки — обязательное требование для обслуживания счетчиков.
6. Материалы и Бюджет
Проект оптимизирован под разумный бюджет, но без экономии на критически важных узлах.
Сантехника: Мы выбрали бренды среднего и высокого сегмента (IDDIS, AM.PM), которые дают хорошую гарантию и сервис.
Отделка: Использование краски на стенах вместо обоев — это инвестиция в долговечность. Стену всегда можно локально подкрасить, в то время как поврежденные обои придется переклеивать целиком.

Заключение
Дизайн-проект в ЖК «Некрасовка» доказывает, что типовая панельная застройка — это не приговор, а отличная база для творчества. Мы превратили стандартную квартиру в функциональное, стильное пространство, которое полностью отвечает ритму жизни в мегаполисе. Заказчик получил не просто визуализацию, а пошаговую инструкцию по созданию своего идеального дома, где продумана каждая деталь.
Детали проекта
Площадь
37,3 м²
Срок
1,5 месяца
Локация
г. Москва, ЖК Некрасовка
Год
2024
Стиль
Современный / МинимализмГалерея
Проект был выполнен для компании REROOMS