
Семейный комфорт: дизайн евротрешки 64 м² в ЖК «Открытый парк»
О проекте
Евро-3 в ЖК «Открытый парк»: Как создать сценарий счастливой жизни на 64 метрах
Введение: Стандарт ПИК с индивидуальным характером
Жилой комплекс «Открытый парк» в Метрогородке — это пример современной городской среды, где типовые планировки требуют нетипового подхода. К нам обратилась молодая семья, Евгений и Анжела, с запросом на дизайн-проект квартиры площадью 63,7 м².
Исходные данные — классическая «евро-трешка»: просторная кухня-гостиная и две небольшие спальни. Главный вызов заключался в том, чтобы адаптировать это пространство под сценарий «на вырост». Заказчики планируют ребенка, но пока им нужны кабинет и гостевая зона. Нам предстояло создать интерьер-трансформер в стиле «элегантный минимализм», который останется актуальным и удобным через 5–10 лет.
Планировочное решение: Приоритет общей зоны
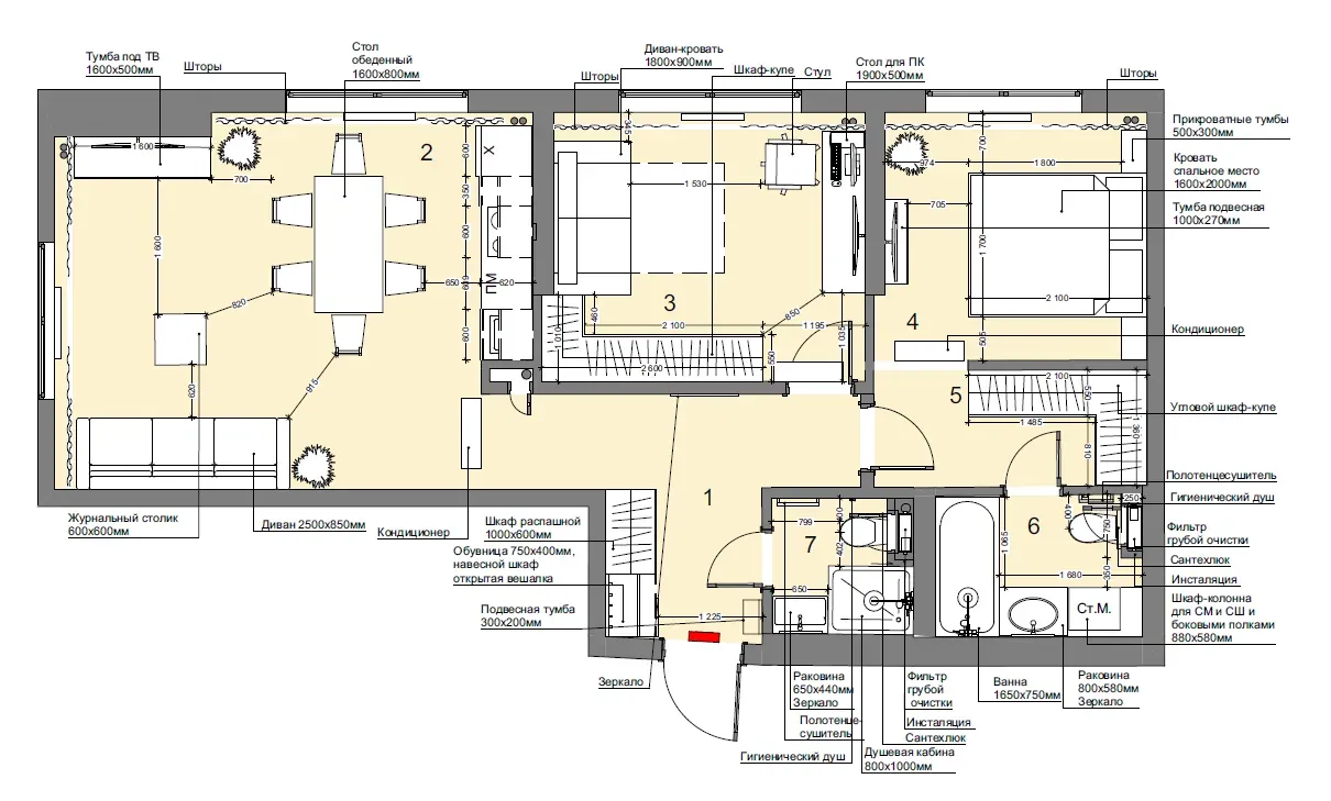
В квартирах площадью до 70 квадратов всегда встает дилемма: жертвовать ли простором общей зоны ради больших спален? Мы с заказчиками единогласно решили: жизнь происходит в гостиной, а в спальне мы только спим.
Кухня-гостиная (23,5 м²): Это безусловное сердце квартиры. Помещение правильной прямоугольной формы мы зонировали на три функциональных блока:
Кухня: Угловой гарнитур со встроенной техникой. Мы использовали фасады в потолок, чтобы визуально растворить мебель в пространстве и увеличить места для хранения.
Столовая: Полноценная обеденная группа, которая служит буфером между зоной готовки и отдыха.
Зона релакса: Удобный диван и ТВ-зона напротив. Здесь достаточно места, чтобы собрать друзей или устроить киновечер.

Приватный блок: Мы четко отделили «шумную» зону от тихой. Две спальни разнесены через коридор, что обеспечивает звукоизоляцию.

Спальня родителей: Камерность и стиль
Комната площадью 11,7 м² может показаться небольшой, но для функции сна этого более чем достаточно. Мы отказались от громоздких шкафов-купе, которые «съедают» воздух. Вместо этого мы сосредоточились на атмосфере. В дизайне использованы элементы фэшн-эстетики (постеры Chanel, графичные линии), что отражает вкус хозяйки, Анжелы. Кровать с мягким изголовьем, прикроватные тумбы и продуманный текстиль — здесь нет ничего лишнего. Цветовая гамма спокойная, пастельная, способствующая быстрому расслаблению.
Вторая комната: Кабинет с прицелом на детскую
Комната площадью 9,1 м² — это стратегический резерв.
Сценарий «Сейчас»: Это кабинет для работы из дома и гостевая спальня для родителей или друзей. Раскладной диван и рабочее место у окна решают эти задачи.
Сценарий «Будущее»: Когда в семье появится малыш, эта комната легко трансформируется в детскую. Базовая отделка нейтральна, и смена назначения произойдет за счет замены мебели, без грязных ремонтных работ.

Санузлы: Роскошь двух мокрых зон
Застройщик предусмотрел в этой планировке два санузла (4,1 м² и 2,7 м²). Часто владельцы квартир стремятся объединить их или переделать один в гардеробную. Мы настояли на сохранении обоих помещений, и вот почему:
Основной санузел (4,1 м²): Здесь разместилась полноценная ванна, раковина с тумбой и унитаз. Это зона спа и утренних сборов.

Гостевой санузел (2,7 м²): Второй туалет с рукомойником. Для семьи, планирующей детей, это не роскошь, а необходимость. Это избавляет от утренних очередей и повышает комфорт, когда приходят гости.

Системы хранения: Скрытые резервы
Где хранить вещи, если в спальнях нет огромных шкафов? Мы задействовали коридоры.
Во входной зоне (8,2 м²) спроектирован большой встроенный шкаф для верхней одежды и обуви.
Во втором коридоре (4,4 м²) организована дополнительная система хранения для сезонных вещей, чемоданов и бытового текстиля.
В спальне родителей предусмотрен локальный гардероб для повседневной одежды.

Дизайн и Материалы
Стилистику проекта можно описать как «мягкий современный минимализм».
Палитра: Мы использовали сложные оттенки бежевого, серого и белого (Off-white). Они служат идеальным фоном и визуально расширяют границы помещений.
Акценты: Графичные черные детали (трековые светильники, фурнитура, рамки постеров) задают ритм и не дают интерьеру стать скучным.
Текстиль: Многослойные шторы, мягкие фактуры обивки мебели добавляют уюта, смягчая строгость минимализма.

Заключение
Проект в ЖК «Открытый парк» демонстрирует, как грамотное планирование побеждает ограничения метража. Мы не стали ломать стены, а использовали сильные стороны планировки застройщика, докрутив их дизайном и эргономикой. В итоге Евгений и Анжела получили стильную, ликвидную квартиру, готовую к любым жизненным переменам.
Детали проекта
Площадь
63,7 м²
Срок
2 месяца
Локация
г. Москва, ЖК Открытый парк
Год
2025
Стиль
Современный / МинимализмГалерея
Проект был выполнен для компании REBL