
Дизайн-проект евро-двушки в ЖК «Руставели 14»: Функциональный интерьер 38 м²
О проекте
Магия малых пространств: Полный разбор дизайн-проекта евро-двушки 38 м² в ЖК «Руставели 14»
Введение: Новый стандарт московской жизни
Рынок столичной недвижимости диктует свои правила. Сегодня квартира площадью 37–38 квадратных метров — это уже не временное жилье для студента, а полноценный актив для молодой семьи или успешного специалиста. Однако перед дизайнерами встает серьезный вызов: как на площади, которая раньше отводилась под стандартную «однушку», разместить функционал трехкомнатной квартиры?
Проект в жилом комплексе «Руставели 14» (застройщик ПИК) стал для нашей студии показательным кейсом. Владельцы квартиры — современные городские жители, которые ценят комфорт, но не готовы переплачивать за лишние метры. Их запрос звучал так: «Нам нужно пространство, которое будет ощущаться большим, светлым и дорогим, несмотря на скромный метраж».
В этом подробном обзоре (Case Study) я расскажу, как мы превратили бетонную коробку площадью 37,77 м² в стильную евро-двушку с изолированной спальней, просторной кухней-гостиной и ванной комнатой уровня пятизвездочного отеля. Мы разберем каждое помещение, обсудим выбор сантехники (почему именно хром?) и затронем важные инженерные нюансы.
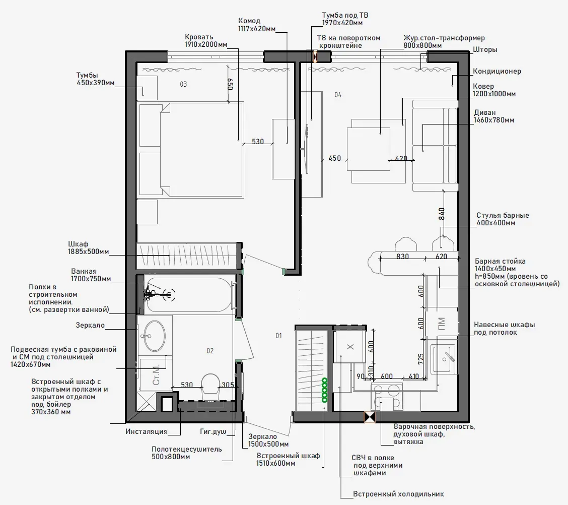
Исходные данные и Планировочная стратегия
Анализ «Бетонной коробки»
Квартиры от ПИК часто имеют типичные плюсы и минусы.
Плюсы: Увеличенные оконные проемы, дающие много света, и отсутствие несущих пилонов внутри квартиры, что развязывает руки при перепланировке.
Минусы: Небольшие санузлы и вытянутая геометрия комнат.
На площади 37,77 м² нам нужно было избежать эффекта «вагона» и нарезки на крошечные клетушки. Мы приняли решение работать в формате «Евро-2». Это самая ликвидная планировка на сегодняшний день, где кухня объединяется с гостиной в единое общественное пространство, а спальня выделяется в отдельный приватный блок.
Философия «Грязной зоны»
Театр начинается с вешалки, а удобная квартира — с прихожей. В маленьких квартирах грязь с улицы часто разносится по всему дому. Чтобы избежать этого, мы жестко зонировали входную группу. Напольное покрытие здесь — практичный керамогранит, который четко очерчивает границы «грязной зоны». Мы спроектировали нишу под встроенный шкаф до потолка. Это не просто место для курток. Внутри скрыт электрический щиток и слаботочный узел (роутер). Такое решение убирает визуальный шум: никаких висящих проводов и мигающих лампочек, только чистые линии мебельных фасадов.
Кухня-гостиная: Сердце дома
Общественная зона — это место, где хозяева проводят 80% времени бодрствования. Здесь мы боролись за каждый сантиметр воздуха.
Кухонный сценарий
Мы выбрали линейную планировку гарнитура. Почему не угловая? В узких помещениях угол часто становится «мертвой зоной», съедая пространство, но не добавляя удобства. Линейная кухня выглядит легче и архитектурнее. Фасады подобраны в цвет стен (оттенки off-white или слоновая кость). Это классический прием «мимикрии»: мебель растворяется в пространстве, и комната кажется больше. Верхние шкафы доведены до самого потолка. Это решает две задачи:
Больше хранения: На антресольных полках можно хранить вещи, которые нужны раз в год (новогодние игрушки, запасной сервиз).
Меньше уборки: На крыше шкафов не скапливается пыль.

Зона отдыха
Напротив кухни расположилась гостиная зона. Здесь достаточно места для полноценного дивана и ТВ-группы. Мы предусмотрели проход шириной не менее 90–100 см между кухней и диваном, чтобы можно было свободно перемещаться даже при открытой дверце посудомойки.
Приватная территория: Спальня
Частая ошибка в ремонте однушек — попытка впихнуть в спальню огромный шкаф-купе, который нависает над кроватью. Мы пошли другим путем. Спальня в этом проекте — это место исключительно для восстановления сил.
Кровать: Центр композиции — двуспальная кровать с мягким изголовьем. Мы не стали экономить на размере спального места ради проходов, ведь качество сна — это приоритет.
Текстиль и Свет: Окна оформлены шторами блэкаут. В сочетании со скрытой нишей для карниза это создает эффект струящейся ткани, визуально поднимая потолок. Освещение здесь камерное: никаких ярких люстр над головой, только мягкий свет бра или подвесов у прикроватных тумб для чтения перед сном.

Санузел: Хром, Стекло и Технологии
Санузел площадью менее 4 м² требовал ювелирной работы. Именно здесь сконцентрирован основной бюджет на инженерию и сантехнику. В соответствии с пожеланиями заказчика, мы полностью отказались от темных и черных элементов. Ставка сделана на сияющий хром и светлую керамику. Это беспроигрышная классика, которая всегда выглядит свежо и опрятно.
Душевая зона: Aquatek
Вместо строительного душа в пол (который сложно согласовать в квартирах без трапа от застройщика) или дешевой кабины, мы выбрали полноценную акриловую ванну. Ключевой элемент здесь — стеклянная шторка Aquatek.
Почему стекло, а не текстиль? Тканевая шторка визуально «режет» маленькое помещение и дешевит интерьер. Прозрачное стекло шторки Aquatek пропускает свет, не создавая преград для взгляда. Ванная комната воспринимается как единое целое.
Профиль: Мы выбрали модель с хромированным профилем. Он идеально сочетается со смесителями и не перегружает интерьер графикой.

Сантехника: BelBagno и Point
Выбор смесителей — это вопрос надежности. Мы использовали итальянский бренд BelBagno (коллекция NOVA).
Материал: Качественная латунь с хромированным покрытием. Хром — самый практичный материал для влажных зон. Он устойчив к коррозии, легко чистится от известкового налета и красиво бликует, добавляя помещению «воздуха».
Унитаз: Мы установили подвесную модель Point Афина с инсталляцией. Почему подвесной? Во-первых, это эстетика скрытого бачка. Во-вторых, это гигиена: мыть пол под таким унитазом — дело одной минуты. Кнопка смыва также выбрана в хроме, поддерживая общую стилистику.

Деталь комфорта: Гигиенический душ
В условиях ограниченного места биде поставить невозможно. Его функции берет на себя гигиенический душ DK Bayern (модель Liszt). Мы предусмотрели модель скрытого монтажа: все коммуникации спрятаны в стене, снаружи остается только аккуратная лейка и рычаг управления. Это стандарт современного жилья комфорт- и бизнес-класса.
Инженерная «начинка»: То, что скрыто от глаз
Дизайн — это не только подбор красивой плитки. 70% успеха проекта зависит от инженерных решений, прописанных в рабочей документации (которая в этом проекте занимает более 20 листов).
Сценарии освещения
Мы ушли от устаревшей схемы «одна люстра в центре комнаты». В проекте реализовано многоуровневое освещение:
Заливающий свет: Встроенные точечные светильники или накладные споты, дающие ровный фон.
Функциональный свет: Яркая светодиодная лента в профиле над рабочей столешницей кухни. Готовить в полумраке — вредно для глаз и опасно.
Декоративный свет: Подсветка зеркала в ванной и бра в спальне создают уютную вечернюю атмосферу.
Электрика и Розетки
План розеток разрабатывался под конкретные сценарии жизни заказчиков.
В откосах окон предусмотрены розетки (для новогодних гирлянд или зарядки телефона на подоконнике).
В ванной есть влагозащищенные выводы для фена и электрической зубной щетки.
За телевизором заложен кабель-канал, чтобы никакие провода не свисали по стене.
Вентиляция и Климат
В санузле спроектирована принудительная вытяжка, подключенная к отдельной клавише выключателя. Это критически важно для предотвращения появления плесени. Также продуманы места установки кондиционеров, чтобы потоки холодного воздуха не были направлены на диван или кровать.
Стилистика: Soft Minimal
Определяя стиль этого интерьера, я бы использовал термин Soft Minimal (Мягкий минимализм). Чистый минимализм может быть слишком холодным и стерильным для жилой квартиры. Мы смягчили его теплыми фактурами и спокойной цветовой гаммой. Отсутствие ярких кричащих цветов, пестрых обоев и сложного декора делает этот интерьер «долгоиграющим». Он не надоест через год. А если захочется перемен — достаточно поменять текстиль (подушки на диване, плед) или добавить пару постеров, и квартира заиграет новыми красками.
Заключение
Проект в ЖК «Руставели 14» доказывает, что комфорт не зависит напрямую от количества квадратных метров. Секрет успеха кроется в детальном планировании и уважении к эргономике. Мы создали пространство, которое работает на человека. Здесь нет случайных вещей. Каждый элемент — от хромированного смесителя BelBagno до высоты розеток у прикроватной тумбы — находится на своем месте. Для владельцев эта квартира станет не просто «местом для ночевки», а настоящим домом — светлым, функциональным и продуманным до мелочей. А для инвестора такой ремонт — гарантия высокой ликвидности объекта на рынке аренды или продажи, ведь качественный дизайн виден с первого взгляда.
Детали проекта
Площадь
37,8 м²
Срок
1,5 месяца
Локация
г. Москва, ул. Руставели 14
Год
2024
Стиль
Soft Minimal (Мягкий минимализм)Галерея
Проект был выполнен для компании REROOMS